西班牙华人网 西华论坛

 找回密码
 立即注册
搜索
查看: 1078|回复: 0
收起左侧

[comunidad valenciana] 海岸区城市超大型空店铺出租.

[复制链接]
发表于 2012-4-6 00:02:10 | 显示全部楼层 |阅读模式
基本信息:
  • 经营项目: 双层,未装修大型店铺
  • 所在地: Benidorm至Altea地区
  • 转让费: 无
  • 月租金: 8欧元每平方米,合同越长,租金越少
  • 电话: 699735033(西、英、中)
  • 邮箱: arda.ying@gmail.com
  • QQ:
  • 详细描述:
  • Alicante省,Benidorm至Altea地区,市中心正街,有一全空超大型店铺出租.也可出售(价格另论). 分上下两层,下层适合做停车场,每层1874平方米,租金为8欧元每平方,如果合同签长的,租金可以减少.合同有效期间可以自由转让店铺.
  • Alicante省,Benidorm至Altea地区,市中心正街,有一全空超大型店铺出租.也可出售(价格另论). 分上下两层,下层适合做停车场,每层1874平方米,租金为8欧元每平方,如果合同签长的,租金可以减少.合同有效期间可以自由转让店铺.
    位于中心,最主要的交通街道,并且当地即将接通高速公路的进出口,所以该处是非常理想的大型百货店场地.

    我也是替朋友发的,有兴趣的朋友可以联系.

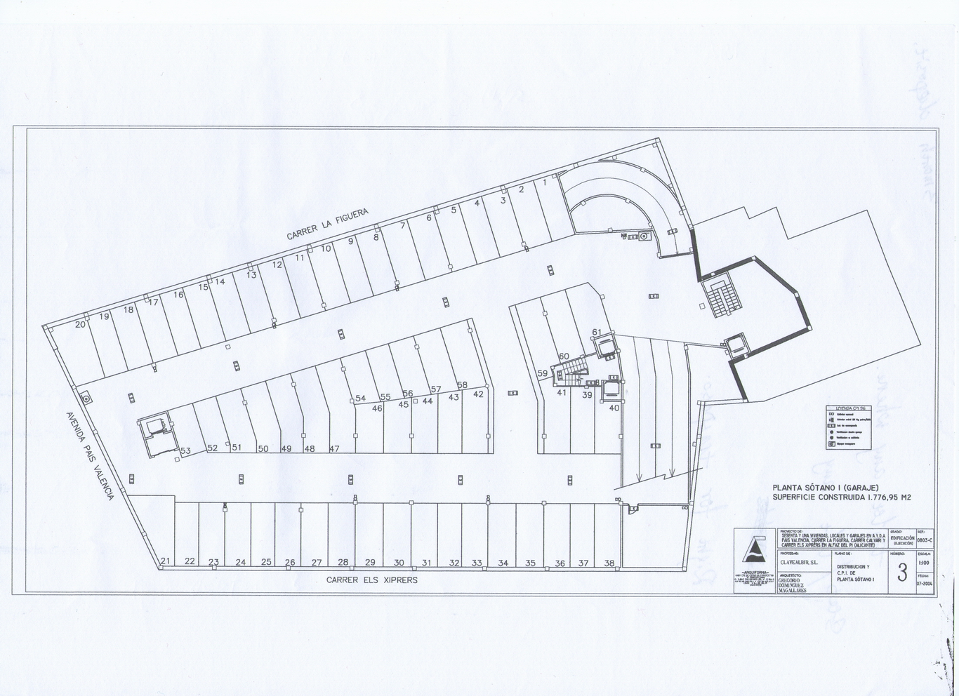
    我去该处看过,位置确实可以.地方太大又没有装修,拍了照片也看不出什么样子来,所以向房东要了两张平面图纸.
    第一张是楼下停车场,第二张是正街店铺,面积是一模一样的,上下之间有楼梯,也保留了安置电梯的通道.
    如果作为百货店,证书已经有了,如果是别的项目,还需另外申请执照.
    所有的水管、排污管都已经设置好,可以在任何位置安置洗手间或厕所,只需要一小段管道接通就行了.
    电力配置瓦数很高,可以安装任何机械设备.总电厢已经配好,有Boletin.需要安装电灯或插座时,只需要接电线过来就可以.
    img013.jpg img012.jpg
    您需要登录后才可以回帖 登录 | 立即注册

    本版积分规则

    谨防不法分子引诱用户加其QQ,利用木马页面(QQ空间)骗取qq密码

    关于我们|广告服务|免责声明|小黑屋|友情链接|Archiver|联系我们|手机版|西班牙华人网 西华论坛 ( 蜀ICP备05006459号 )

    GMT+2, 2026-4-19 12:36 , Processed in 0.009004 second(s), 16 queries , Gzip On, Redis On.

    Powered by Discuz! X3.4 Licensed

    Copyright © 2001-2021, Tencent Cloud.

    快速回复 返回顶部 返回列表
    手机版